
Se împlinesc 2 ani de la așa-numita dezbatere privind dezvoltarea cartierului Sopor, din toamna lui 2020, însă proiectul realizării unui cartier «de la zero» și «ca la carte» este prins încă în «furcile administrative» și birocratice. Autoritățile nu pot avansa un termen precis privind realizarea acesei investiții, dar speră ca planul urbanistic să fie adoptat de consilierii lui Emil Boc în acest an.
Regenerarea urbană din cartierul Sopor presupune parcurgerea unui proces de luuungă durată și vor mai trece câțiva ani până când se va putea construi.
„La Sopor am reușit să obținem toate avizele, inclusiv avizul de la aeronautică. În anul acesta vom pune PUZ-ul în dezbatere, că trebuie să intre prin toate furcile administrative și prin toate rigorile legale.
Primăria Cluj-Napoca nu are teren în zona Sopor. Toate terenurile de acolo sunt terenuri private.
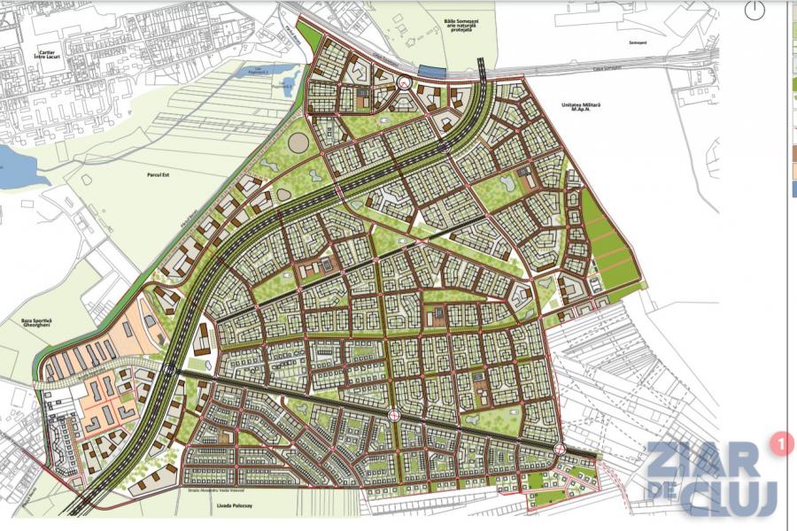
Noi ne-am asumat să facem acest PUZ pe 250 ha pentru a avea o dezvoltare unitară și a face un cartier de la zero, un cartier modern, cu o planificare urbanistică așa cum trebuie să fie o planificare urbanistică – străzi suficient de largi, cu locuri de joacă pentru copii, cu spații verzi etc.
Cheia, să spun așa, astăzi, nu mai este la noi. După aprobarea PUZ-ului cheia va fi la investitori, la cei care dețin terenuri acolo.
Și, acolo, categoric va fi testată și capacitatea de asociere a oamenilor care dețin terenuri acolo, pentru că sunt anumite cvartale mai mici și în care oamenii trebuie să se asocieze pentru a putea să facă mini puz-uri în care să stabilească doar circulațiile interne în zona parcelelor.
Dar toate aceste elemente vor fi după ce va fi aprobat PUZ-ul în Consiliul local și estimarea mea este că în anul acesta puz-ul va fi votat în Consiliul local”, nădăjduiește viceprimarul Dan Tarcea, care a explicat procesul birocratic al acestei investiții la un post local de radio.
„Mai avem de obținut un singur aviz, avizul de la Mediu, este în procedură de obținere pentru faza de PUZ.
După ce se obține și acest aviz de la Mediu, pentru că avizul de la Mediu include toate celelalte avize care sunt obținute, este în procedura de mediu, este în procedura luuungă de mediu, pentru că sunt 2 proceduri – una scurtă, care durează 45 de zile, și una care durează mai mult.
Deja sunt începute procedurile, și de aceea am spus că estimarea mea este că în anul acesta PUZ-ul va fi pus pe masa consilierilor locali pentru a putea fi votat”, a mai detaliat Dan Tarcea parcurgerea procesului specific «furcilor administrative».
Acesta a declarat că îi „este greu să avanseze un termen”, privind încheierea etapelor de hârtie al viitorului cartier Sopor.
„Când avem pe masă avizul de la Mediu, atunci putem avansa termene clare”, a conchis viceprimarul Tarcea.
Masterplanul viitorului cartier Sopor a fost discutat în cadrul unei dezbateri online organizată de Centrul de Inovare și Imaginație Civică al Primăriei în octombrie 2020.
Proiectul viitorului cartier prevede un mini oraș cu case și blocuri de patru sau cel mult șase etaje, zone verzi, spații comerciale, cabinete medicale, grădinițe, școli, bulevarde, transport public și modalități de deplasare alternativă.